Pronat

Shitje
Shitje
Shitje
Shitje

Apartament D-3-1 (2+1)

1650€ / m²
Tiranë 128,3 m² Apartament
Jo e mobiluar Nuk lejohen kafshët Dhoma: 2 Kati: 3 Pa parking

Përshkrimi

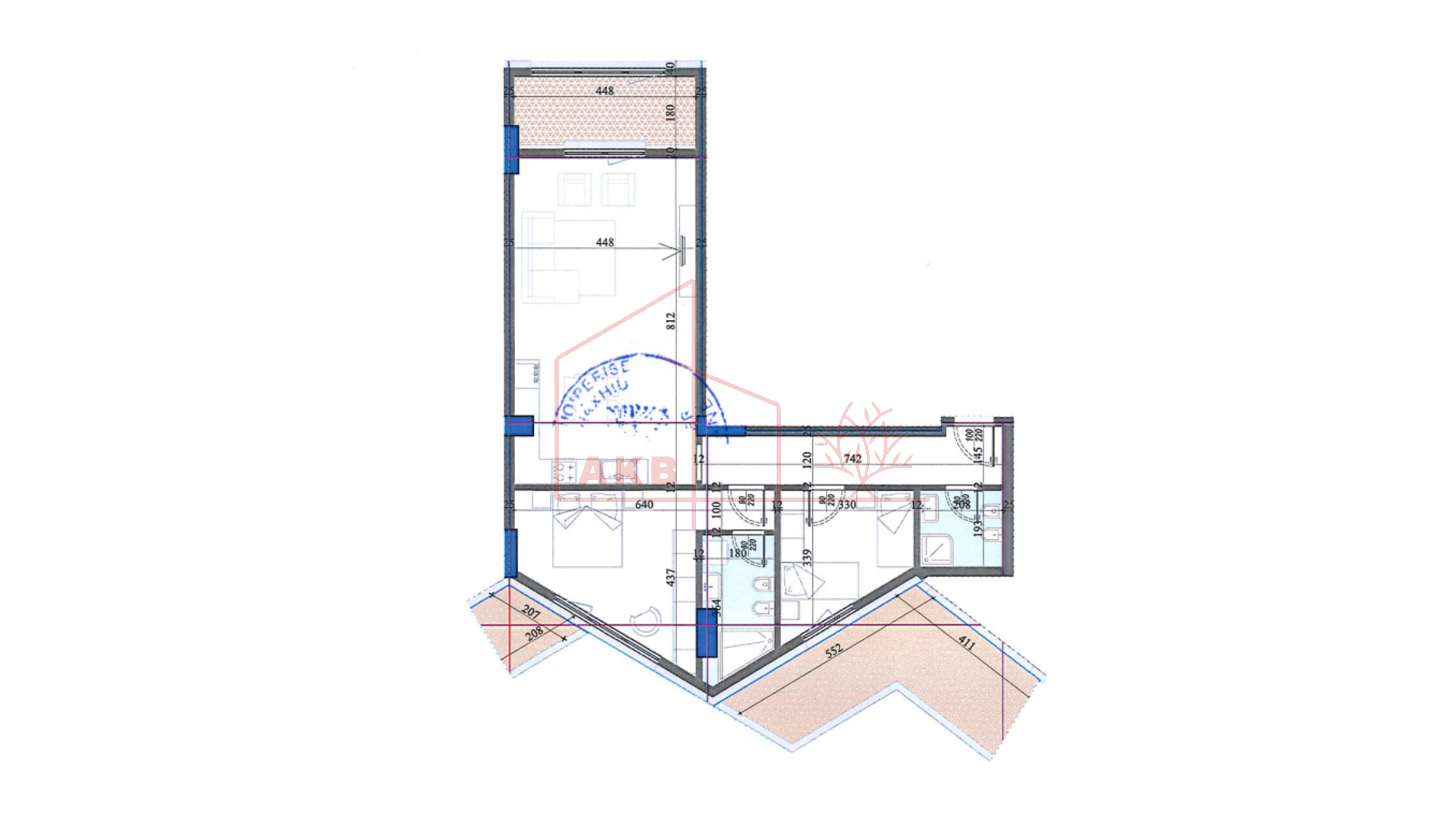
Ofrohet për shitje një apartamenti i tipologjisë 2+1, i pozicionuar në katin e tretë të një ndërtimi modern në rrugën "Dritan Hoxha", një zonë shumë e kërkuar dhe me akses të shpejtë drejt qendrës së qytetit dhe akseve kryesore.

Apartamenti ka një sipërfaqe neto prej 106m², 22.3m² sipërfaqe të përbashkët, si dhe një verandë prej 20.2m², e cila ofron një hapësirë të bollshme për relaks, gjelbërim apo aktivitete në ambient të hapur.

Objekti disponon gjithashtu dhe 4 kate nëntokësore parkimi, duke ofruar komoditet dhe siguri për parkimin e automjeteve të banorëve.

Një mundësi shumë e mirë si për banim, ashtu edhe për investim, falë vendndodhjes së favorshme dhe hapësirave të bollshme që ofron kjo pronë.

Çmimi i apartamentit: 1650 €/m²
Çmimi i verandës: 850 €/m²

Jeni të Interesuar?