Pronat

Shitje
Shitje
Shitje
Shitje
Shitje
Shitje
Shitje
Shitje

Vila nr. 4 - Belvedere

355960€
Korçë 252,92 m² Vila
Jo e mobiluar Nuk lejohen kafshët Dhoma: 2 Kati: 2 Pa parking

Përshkrimi

Në kompleksin rezidencial "Belvedere", në një zonë të qetë dhe panoramike pranë Malit të Thatë, ofrohet Vila Nr. 4, një pronë moderne e konceptuar për komoditet maksimal dhe funksionalitet familjar.

Vila është ndërtuar mbi një parcelë prej 221.64 m², me sipërfaqe totale oborri 165.47 m², duke ofruar hapësirë ideale për relaks, gjelbërim dhe aktivitete në natyrë. Sipërfaqja totale e vilës është 252.92 m², e organizuar në disa nivele si më poshtë:

Kati nëntokë:
- Sipërfaqe e katit nëntokë: 56.17 m²
- Ambient teknik: 20 m²
- Shkallë të jashtme: 16.79 m²

Ky nivel është i përshtatshëm për ambiente ndihmëse, depo, lavanderi ose hapësira teknike.

Kati përdhe:
- Sipërfaqe e katit përdhe: 55.12 m²
- Dhomë ndenjeje + gatim (open space): 41.5 m²
- Tualet: 1.6 m²
- Sheshpushim: 3.66 m²
- Shkallë të jashtme: 16.78 m²

Kati përdhe ofron një ambient të hapur dhe funksional, ideal për jetesën e përditshme dhe pritjen e miqve.

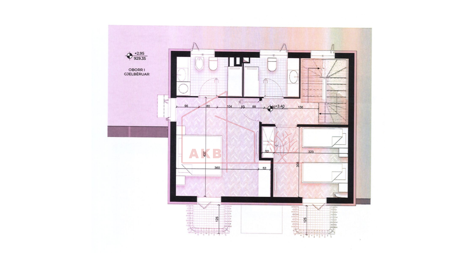
Kati i parë:
- Sipërfaqe e katit të parë: 56.17 m²
- Dhomë gjumi 1: 14.4 m²
- Tualet 1: 4.5 m²
- Dhomë gjumi 2: 10.1 m²
- Tualet 2: 3.5 m²
- Korridor: 3.3 m²
- Ballkon: 4.5 m²

Ky kat është dedikuar zonës së pushimit, duke ofruar privatësi dhe organizim optimal për familjen.

Kati nënçati:
- Sipërfaqe e plotë: 56.17 m²

Një hapësirë multifunksionale që mund të shfrytëzohet si dhomë gjumi shtesë, studio, zyrë ose ambient rekreativ.

Me një arkitekturë funksionale dhe pozicion strategjik, kjo vilë përfaqëson një zgjedhje ideale për banim të përhershëm ose investim afatgjatë në qytetin e Korçës.

Jeni të Interesuar?