Pronat

Shitje
Shitje
Shitje
Shitje
Shitje
Shitje
Shitje
Shitje
Shitje
Shitje

Apartament F4-6 - Green Coast

554114€
Palasë 169,15 m² Shtëpi Pushimi
Jo e mobiluar Nuk lejohen kafshët Dhoma: 2 Kati: 4 Pa parking

Përshkrimi

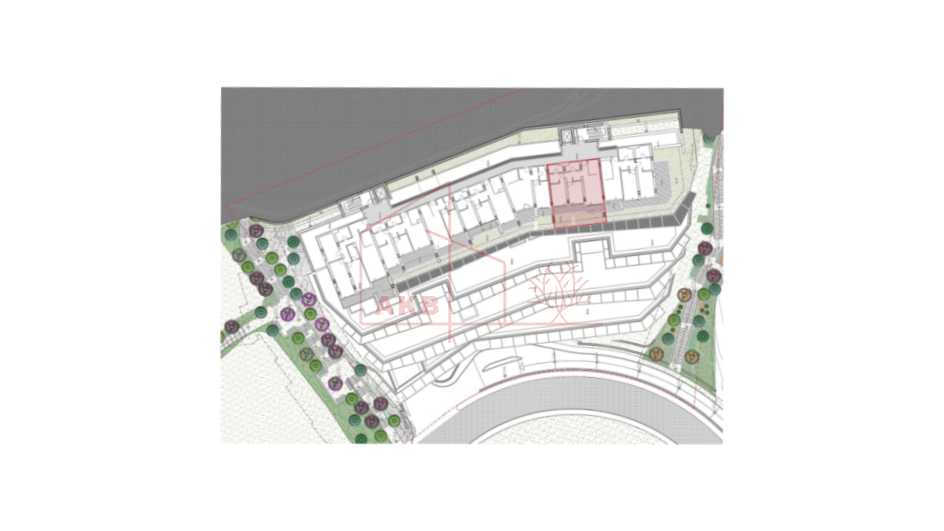
Ofrohet për shitje një apartament modern i tipit 2+1, i pozicionuar në një nga resortet më prestigjioze të bregdetit shqiptar, Green Coast, Palasë.

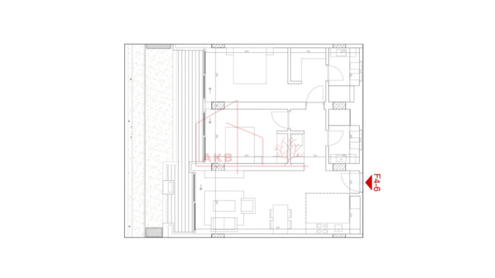
Apartamenti ndodhet në objektin “G7A”, në katin e katërt dhe ka një organizim funksional me hapësira të bollshme dhe ndriçim natyral. Me një sipërfaqe totale prej 169.15 m², prona përfshin:

Sipërfaqe apartamenti: 120.35 m²
Sipërfaqe e përbashkët: 48.80 m²
Verandë e gjerë: 28.44 m², ideale për relaks dhe shijim të pamjes

Në çmim përfshihen gjithashtu një depo private D2-16 me sipërfaqe 11.60 m², e vendosur në katin e dytë dhe 1 post parkimi (P22) në katin e parë.

Apartamenti është pjesë e një kompleksi të mirëadministruar, me standarde të larta ndërtimi, akses të lehtë, siguri dhe afërsi me plazhin, restorante dhe shërbime elitare të zonës.

Zgjedhje ideale si shtëpi pushimi, investim turistik ose për banim gjatë gjithë vitit.

Jeni të Interesuar?