Pronat

Shitje
Shitje

Apartament nr. 47 - Riviera Residences

700€ / m²
Kamëz 107,93 m² Apartament
Jo e mobiluar Nuk lejohen kafshët Dhoma: 2 Kati: 5 Pa parking

Përshkrimi

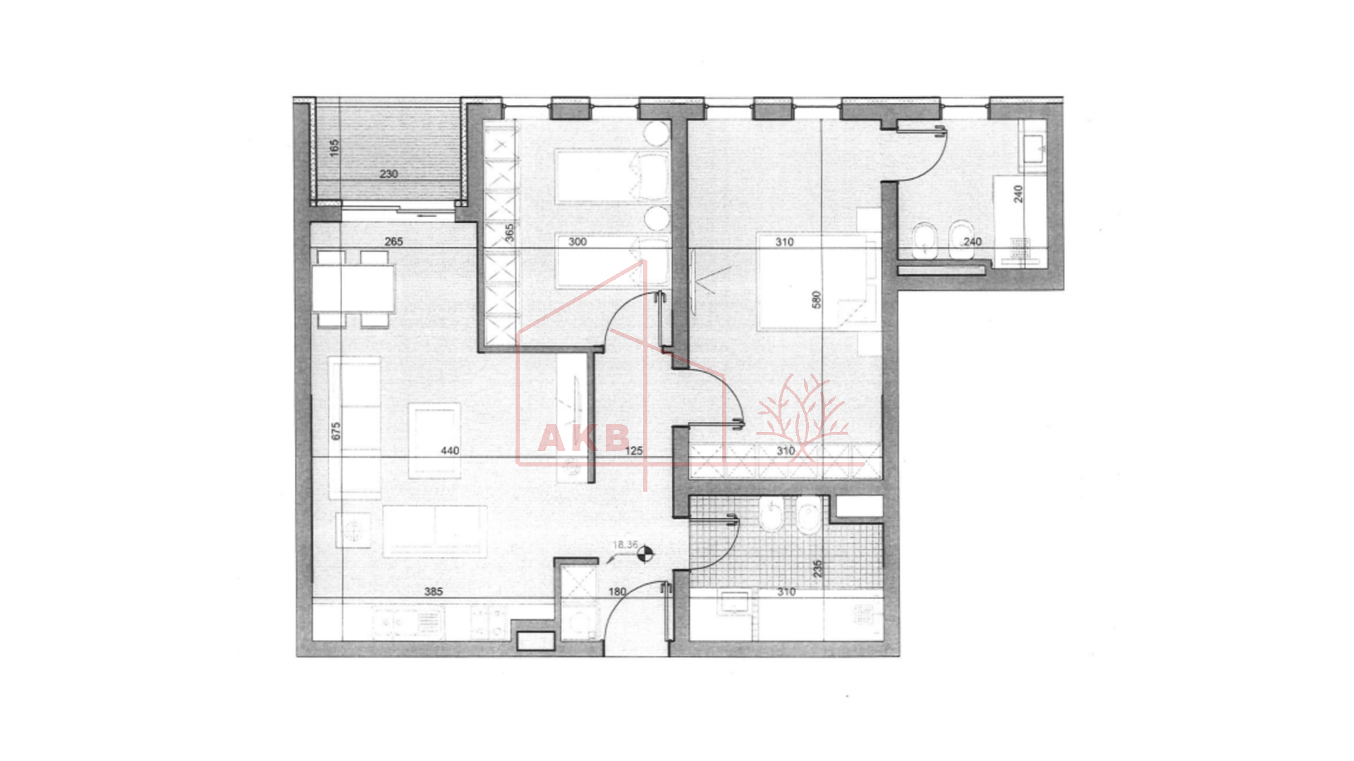
Ofrohet për shitje apartament 2+1 në katin e pestë, i pozicionuar në Riviera Residence, Kamëz.

Apartamenti ka një sipërfaqe neto prej 91.9m² dhe sipërfaqe të përbashkëta 16.03m², me organizim funksional të ambienteve dhe ndriçim natyral të mirë. Është i përshtatshëm si për banim personal ashtu edhe për investim, falë planimetrisë praktike dhe çmimit konkurrues.

Rezidenca ofron standarde të mira ndërtimi dhe një mjedis të rregullt banimi, me akses të lehtë në rrugët kryesore dhe shërbimet e zonës.

Jeni të Interesuar?