Pronat

Shitje
Shitje
Shitje

Apartament Duplex - Bevea

1300€ / m²
Tiranë 138,2 m² Apartament
Jo e mobiluar Nuk lejohen kafshët Dhoma: None Kati: 0 Pa parking

Përshkrimi

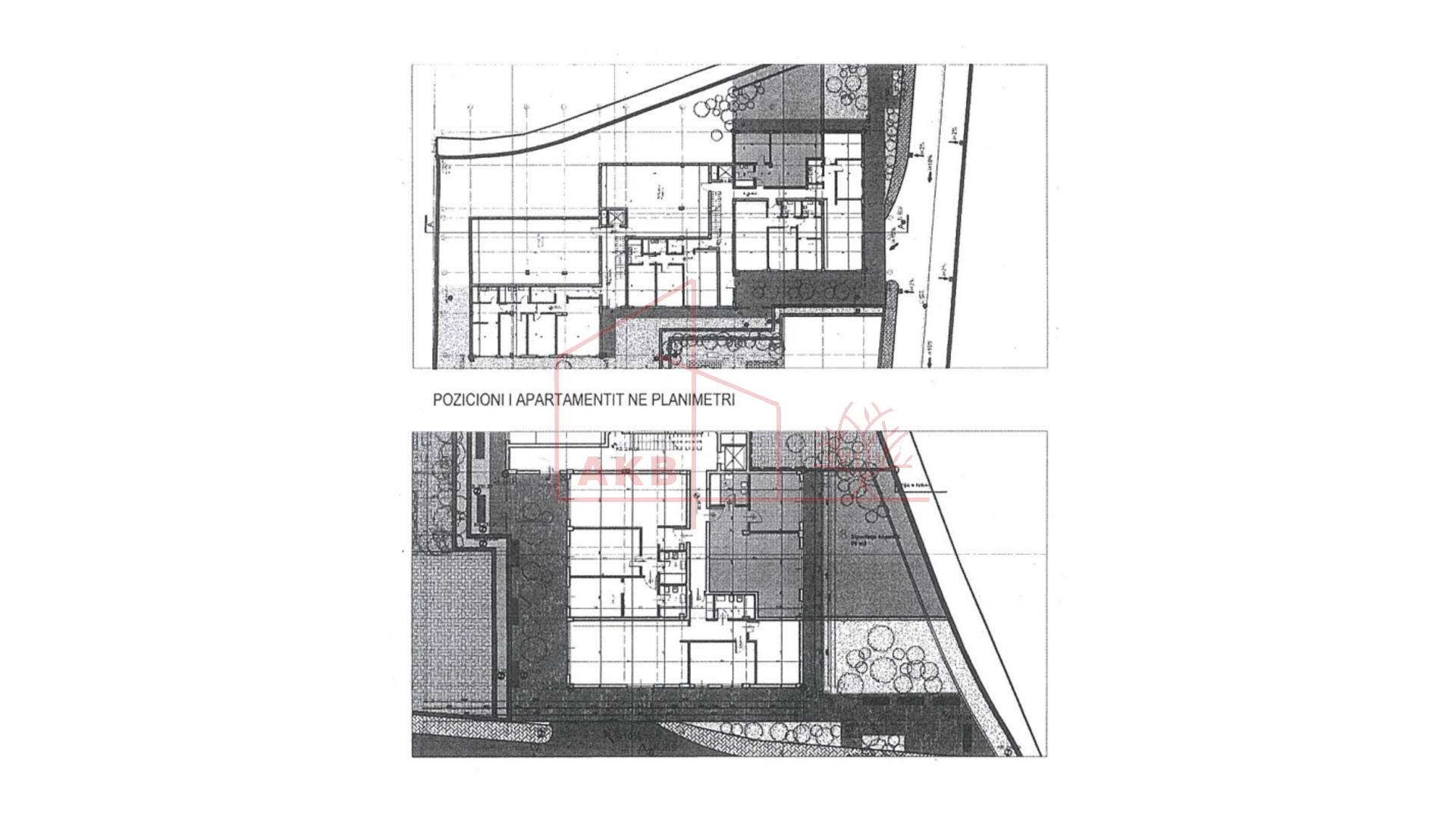
Shitet apartament modern dupleks, i pozicionuar në një rezidence cilësore të ndërtuar nga Bevea Group, në zonën e qetë dhe shumë të kërkuar të Farkës. Prona ofron hapësira të bollshme dhe funksionale, ideale për familje që kërkojnë komoditet, privatësi dhe një ambient të gjelbëruar.

Apartamenti ka një sipërfaqe prej 138.20 m², shoqëruar me 16.60m² sipërfaqe të përbashkët, si dhe një oborr privat prej 95m², i cili ofron mundësi të shkëlqyera për relaks, aktivitete familjare apo organizim sipas preferencave personale.

Organizimi i brendshëm është i menduar në mënyrë funksionale, me ndriçim natyral gjatë gjithë ditës dhe dalje direkte në oborr, duke krijuar një ndjesi rehatie dhe hapësire. Rezidenca garanton standarde të larta ndërtimi, qetësi dhe siguri, si dhe akses të lehtë drejt zonave kryesore të Tiranës.

Kjo pronë përfaqëson një zgjedhje ideale si për banim familjar, ashtu edhe për investim afatgjatë, duke kombinuar cilësinë e ndërtimit me një stil jetese komod dhe të qetë.

Jeni të Interesuar?