Pronat

Shitje
Shitje
Shitje

Dyqani 11 - Kuteli SHPK

2000€ / m²
Tiranë 77,47 m² Njësi Biznesi
Jo e mobiluar Nuk lejohen kafshët Dhoma: None Kati: 0 Pa parking

Përshkrimi

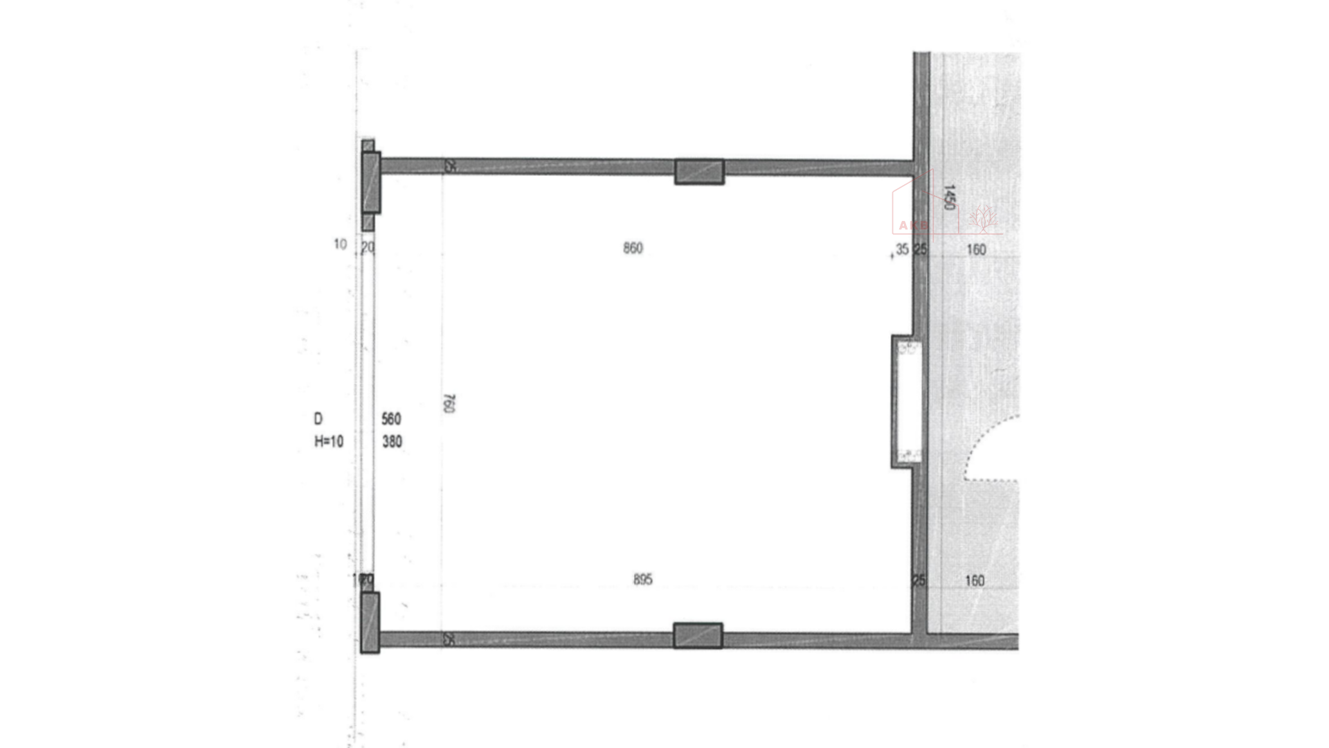
Ofrohet për shitje dyqan / njësi biznesi, i pozicionuar në një zonë shumë të frekuentuar tek Ish-Profarma, në katin 0, me ekspozim dhe akses direkt nga rruga.

Njësia ka një sipërfaqe neto prej 73.59m² dhe sipërfaqe të përbashkëta 3.88m², duke ofruar hapësirë funksionale të përshtatshme për aktivitete të ndryshme biznesi si dyqan apo aktivitete të tjera tregtare.

Prona përfiton nga parkimi në 1 kat nëntokë, një avantazh i rëndësishëm për klientët dhe stafin. Pozicioni strategjik garanton fluks të lartë kalimtarësh dhe potencial të mirë investimi.

Jeni të Interesuar?