Pronat

Shitje
Shitje

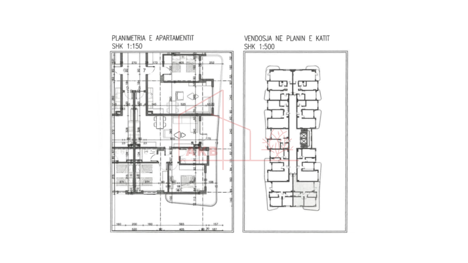
Apartament nr. 8 - Demollari

800€ / m²
Kamëz 113,97 m² Apartament
Jo e mobiluar Nuk lejohen kafshët Dhoma: 2 Kati: 8 Pa parking

Përshkrimi

Apartament 2+1 për shitje në katin e tetë, i pozicionuar në Kamëz, në Residencën Demollari.

Prona ka një sipërfaqe neto prej 97.04m² dhe sipërfaqe të përbashkëta 16.93m², me organizim të rregullt të ambienteve dhe ndriçim natyral të mirë. Apartamenti është i përshtatshëm për familje që kërkojnë hapësirë, qetësi dhe akses të lehtë në shërbimet e zonës.

Kompleksi ofron standarde të mira ndërtimi dhe një mjedis të rregullt për banim.

Jeni të Interesuar?