Pronat

Shitje
Shitje

Apartament nr. 26 - 2N SHPK

1200€ / m²
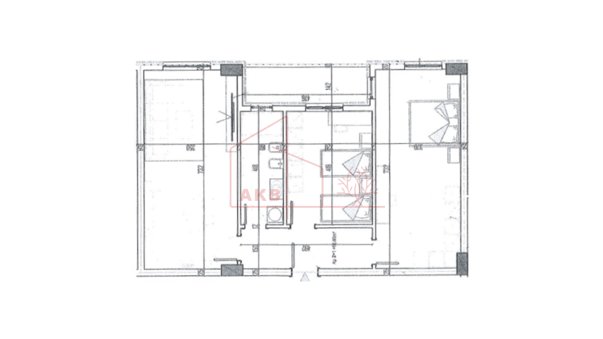
Paskuqan 106,82 m² Apartament
Jo e mobiluar Nuk lejohen kafshët Dhoma: 2 Kati: 4 Pa parking

Përshkrimi

Apartament 2+1 për shitje në katin e katërt, i pozicionuar në Paskuqan, në një rezidencë moderne të ndërtuar nga Kompleksi 2N sh.p.k.

Prona ka një sipërfaqe neto prej 92.6m², ndërsa sipërfaqja e përbashkët është 14.22m², duke ofruar hapësira funksionale dhe të organizuara mirë për një jetesë komode. Apartamenti ndodhet në një pallat bashkëkohor, me cilësi ndërtimi dhe akses të lehtë në zonat kryesore përreth.

Në dispozicion ofrohet edhe parkim në katin nëntokë, një avantazh i rëndësishëm për komoditet dhe siguri.

Jeni të Interesuar?