Pronat

Shitje
Shitje
Shitje
Shitje
Shitje

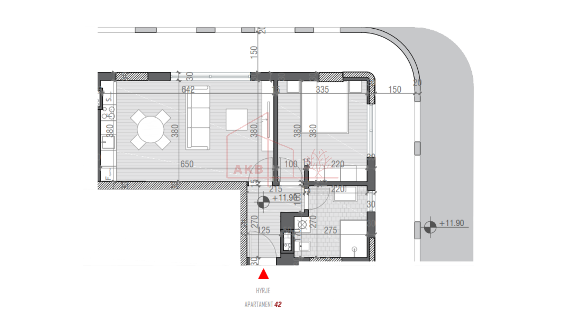
Apartament nr. 42 - One Oricum Bay

2300€ / m²
Orikum 100,32 m² Shtëpi Pushimi
Jo e mobiluar Nuk lejohen kafshët Dhoma: 1 Kati: 3 Pa parking

Përshkrimi

Shitet apartament 1+1 në katin e tretë të kompleksit modern One Oricum Bay. Njësia ofron një organizim funksional dhe komfort, me sipërfaqe neto 59.79m², sipërfaqe të përbashkët 8.93m² dhe ballkon prej 31.6m², ideal për relaks dhe pamje të hapura. Gjithashtu e pajisur me verandë me sipërfaqe prej 17.79m².

Kompleksi gëzon një pozicion gjeografik strategjik, pranë porteve kryesore të Vlorës dhe Durrësit, si dhe atyre turistikë të Himarës dhe Sarandës. Aeroporti i ri i Vlorës do të përmirësojë ndjeshëm aksesin, ndërsa marina pranë ofron shërbime jahte dhe lundrimi. Zona përfiton gjithashtu nga afërsia me pikëkalimet kufitare me Greqinë dhe ndodhet vetëm pak minuta nga Tuneli i Llogarasë dhe aksi drejt Rivierës së famshme shqiptare. Udhëtimet drejt Vlorës, Dhërmiut dhe Tiranës variojnë nga 28 minuta deri në rreth 2 orë.

Ky apartament përbën një mundësi të shkëlqyer investimi ose banimi në një nga zhvillimet më premtuese të zonës.

Çmimi i apartamentit: 2300€ / m²
Çmimi i verandës: 1150€ / m²

Jeni të Interesuar?