Pronat

Shitje
Shitje
Shitje
Shitje
Shitje

Njësi Shërbimi Nr. 11 - Golden Gate

4500€ / m²
Tiranë 200,27 m² Njësi Shërbimi
Jo e mobiluar Nuk lejohen kafshët Dhoma: None Kati: 0 Pa parking

Përshkrimi

Kompleksi rezidencial GOLDEN GATE është konceptuar si një rezidencë që i jep vëmendje të veçantë diellëzimit dhe ajrosjes natyrale dhe vendos një raport të shkëlqyer ndërmjet ndërtesës, gjelbërimit dhe hapësirave publike. I gjendur në Bulevardin "Bajram Curri" tek "Ali Demi", ky kompleks është një godinë banimi me 10 kate mbi tokë dhe 2 kate nëntokë për parkim. Objekti është konceptuar si një qelizë urbane, e cila i zgjidh të gjitha funksionet brenda saj.

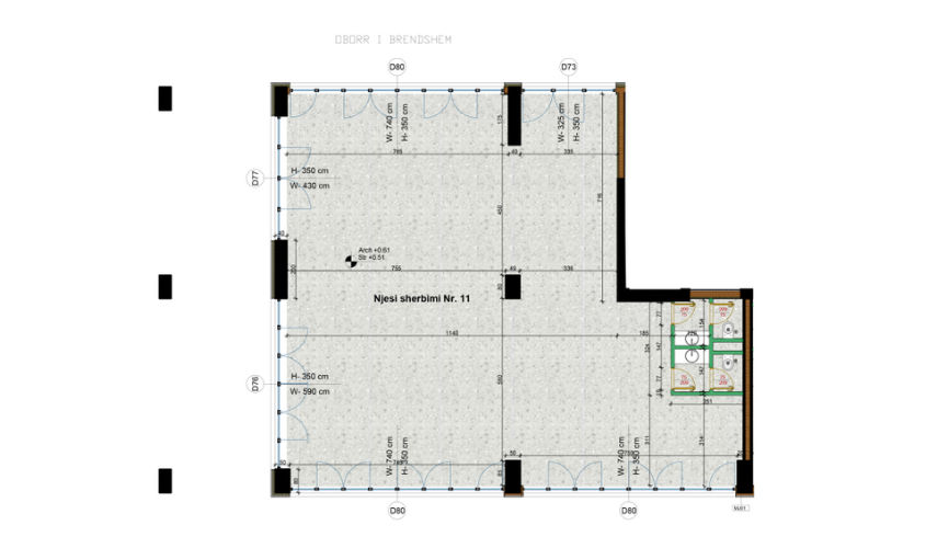
Njësia e shërbimit 11 ndodhet në katin zero të ndërtesës dhe ka një sipërfaqe neto prej 199.08m² dhe sipërfaqe të përbashket prej 1.19m². Kjo njësi ju ofron mundësi të shkëlqyera për zhvillimin e biznesit tuaj në një zonë të frekuentuar, duke ju ofruar ekspozim maksimal në fasadën e objektit dhe akses direkt lëvizjeje.

Kushtet e pagesës: 80% me nënshkrimin e kontratës së porosisë (e negociueshme), 15% me dorëzimin, 5% me kontratën e shitblerjes (hipoteka)

Tarifa e administrimit: Shoqëria Andi do të administrojë Rezidencën Golden Gate për një periudhë 3 vjecare. Tarifa e administrimit për njësitë e shërbimit dhe njësitë e zyrave është 40lek/m² në muaj, e cila do të likujdohet bashkë me kontratën e porosisë.

Jeni të Interesuar?